-
Характеристики
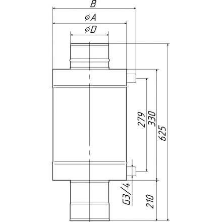
Производитель Термофор Гарантия мес 12 Тип Теплообменник натрубный Объем, л 8 -
Описание
Теплообменник Термофор КОСТАКАН 8 л самоварного типа ?115, G3/4 специально создан и идеально подходит для банных печей «TMF», но может также использоваться с любыми другими похожими изделиями. Предназначен для нагрева воды в выносном баке. Устанавливается на выходной патрубок дымохода банной печи и использует для нагрева воды тепло уходящих в трубу газов. Бак может быть установлен в соседнем с парилкой помещении, например, в моечной.
Преимущества натрубного теплообменника Костакан 8 л, ?115, G3/4: Увеличенный объём теплообменника (8 литров) позволяет быстро нагревать воду в баках большого объёма. Долговечен и безопасен за счёт сверхнадёжных сварных швов современного специализированного оборудования.Оснащён удобными отверстиями для залива и слива воды.Используются стандартные присоединительные размеры G3/4 с наружной резьбой. Вода в выносном баке нагревается за счёт циркуляции между теплообменником и выносным баком для воды. Движение воды обусловлено физическим свойством горячей воды расширяться, никаких дополнительных средств не требуется. Горячая вода поднимается по одной из соединительных труб в бак, а по другой трубе холодная вода из бака постоянно добавляется в теплообменник для нагрева. Для эффективной работы системы нагрева воды, разница высоты между теплообменником и баком должна быть существенной - минимум 30 см между верхним штуцером теплообменника и дном бака. Бывает, что соблюсти это требование не просто, так как потолки в банях невысокие, теплообменник установлен на печи достаточно высоко, а большинство баков для воды вертикальные. Для таких случаев компания Термофор производит горизонтально ориентированный выносной бак «Цеппелин».Страна производства: РоссияПроизводитель: ООО "Термофор". РФ, г.Новосибирск, ул.Станционная, д.60/10 , 630071Импортер в РБ: ООО "БАНЬКА", 220114, Минск, Филимонова 55/3 пом 307Сервисный центр: ООО "БАНЬКА", 220114, Минск, Филимонова 55/3 пом 307Срок гарантии 1 год Масса 4 кг Габариты (ДхШхВ) 25,5х22,5х62,5 см Диаметр дымохода 115 мм Объем 8 л Водопроводная арматура 3/4 G Материал изготовления AISI 409 Толщина стали (обечайка) 0,8 мм Толщина стали (труба) 1 мм
Теплообменник Термофор КОСТАКАН 8 л самоварного типа купить в Барановичах с доставкой и рассрочкой платежа. -
Отзывы
-
Условия доставки и оплаты
Условия доставки Теплообменник Термофор КОСТАКАН 8 л самоварного типа в Барановичи -
С этим товаром покупают
Гарантия и возврат
Амазонка бай реализует более 10 000 товаров надлежащего качества от проверенных поставщиков, зарекомендовавших себя как ТОП-производители. Гарантия производителя распространяется на гарантийный талон либо иной другой документ его заменяющий.
В случае возникновения гарантийного случая необходимо обратиться в сервисный центр или в наш отдел по рекламациям.
Какие гарантийные сроки?
В основном на продукцию распространяется гарантия от 12 месяцев до 25 лет в зависимости от срока, предусмотренного производителем. Данная информация указана в гарантийном талоне либо ином заменяющем его документе.
За более подробной информацией и разъяснениями можете обращаться к нам по телефону +375 (29) 8000 226. Всегда рады помочь!
Какая информация должна быть в гарантийном талоне?
Гарантия содержит информацию:
- дата реализации;
- модель товара;
- серию и номер.
В талоне проставляется штамп торгующей организации и печать ответственного лица.
Легкий возврат товара
Возврат некачественного товара.
Для возврата приобретенного недоброкачественного товара будет необходимо:
- связаться по телефону +375 (29) 8000 226 с отделом по рекламациям, объяснить причину поломки;
- предоставить документы, свидетельствующие о приобретении: кассовый чек, товарный чек, ТН, договор поставки и иные документы, доказывающие факт приобретения данного товара;
- оформление возврата некачественного товара - заявление;
- согласование возврата денежных средств либо замену товара.
Возврат товара надлежащего качества.
В случае возврата доброкачественного товара, потребитель осуществляет возврат в течение 14 календарных дней с момента приобретения. Товар должен быть в заводской упаковке, без повреждений, содержать все сопроводительные документы (гарантийный талон, паспорт изделия и т.д.) и иметь такой же вид, как при покупке.
Обращаем Ваше внимание, что возврат возможен не на все категории товаров. Перечень непродовольственных товаров надлежащего качества, не подлежащих обмену и возврату, утвержден Постановлением Совета Министров Республики Беларусь № 778 от 14.06.2002 года. (Изделия под заказ, отрезные товары)
Остались вопросы? Позвоните нам для уточнения +375 (29) 8000 226.
Простая замена товара
Я могу вернуть доброкачественный товар?
Да. Если Вы приняли решение вернуть качественный товар, такая возможность действует в течение 14 календарных дней со дня приоретения. Внимание! Товар должен иметь продажный вид как при покупке, без следов эксплуатации.
Однако вернуть можно не все покупки. Перечень непродовольственных товаров надлежащего качества, не подлежащих обмену и возврату, утвержден Постановлением Совета Министров Республики Беларусь № 778 от 14.06.2002 года. Обмен и возврат продукции осуществляется на территории продавца.
Как вернуть недоброкачественный товар?
Для возврата товара ненадлежащего качества требуется:
- обратиться к торговой организации;
- предъявить документы, подтверждающие покупку;
- обязательно предоставить заявление на возврат;
- обговорить возврат средств с менеджером.
Необходимо некачественный товар вернуть по месту расположения продавца.
Кредит и рассрочка товара
Порядок действий для рассрочки:
- 1. Клиент выбирает товар в интернет-магазине.
- 2. Определяется и согласовывает с менеджером сроки и условия рассрочки.
- 3. В зависимости от выбранных условий направляется заявка в банк.
- 4. Банк оперативно рассматривает заявку.
- 5. После подтверждения рассрочки доставляем товар покупателю.

* Скидки и акции при рассрочке не действуют

* Скидки и акции при рассрочке не действуют
название | в месяц | итого | |
---|---|---|---|
Карта Черепаха (8 мес.) | 37 | 296 | |
Альфа-рассрочка (5 мес.) | 59 | 296 | |
Халва (4 мес.) | 74 | 296 | |
Легкие покупки (4 мес.) | 74 | 296 | |
Карта покупок (2 мес.) | 148 | 296 |